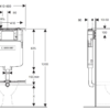
Geberit Concealed Cistern – BTW
Front Flush
-4.5/3L flush
-HDPE one piece tank
-Suits S or P trap BTW pans
-Concealed cistern with front actuation
-Suits floor mounted / wall-faced pans
-Fully insulated against condensation
-Water supply connection on the top left
-Flush bend fitted
-Operating pressure 10-1000 kpa
-Designed in Switzerland, made in Germany
